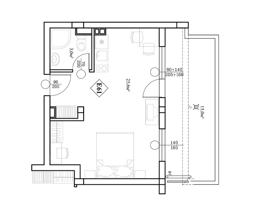
Complex | Royal Sun |
---|---|
Location | Sunny Beach |
Ap. number | E61 |
Type | studio |
Total area sq.m | 56.82 |
Area sq.m | 48.47 |
View | street |
Floor | 6 |
Status | For sale |
Apartment E61
BACK TO ALL APARTMENTS

See more
See less
VIEW PLAN
ENQUIRY